08/04/2026 | Notícia | ArchDaily

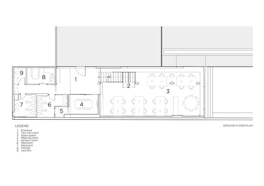
Descrição enviada pela equipe de projeto. A nova sede da Linus, localizada no térreo de um edifício comercial em Pinheiros, São Paulo, é um exemplo perfeito do diálogo harmonioso entre o espaço de trabalho e a identidade visual da marca. A fachada foi pensada como uma caixa contínua de vidro, que através da transparência revela a estrutura metálica do mezanino que não faz nenhum ponto de contato com as fachadas. O efeito é flutuante.


O térreo é voltado para a rua e para garantir privacidade foram aplicadas películas que trazem um efeito jateado que filtra a transparência sem perder a luz natural que inunda o espaço.

A estrutura de metal vermelho-tijolo do mezanino é inspirada em um dos principais produtos da marca. Essa escolha de cor contrasta com o verde exuberante da vegetação. Essa interação de cores e materiais cria uma atmosfera que favorece a criatividade e a concentração.


O céu, visível a partir dos escritórios, torna-se um elemento central do projeto, trazendo uma dimensão calmante ao espaço de trabalho. A iluminação moderna e otimizada, com luminárias cuidadosamente escolhidas, difunde uma luz suave e agradável por todo o espaço, promovendo um ambiente de trabalho agradável.
Para otimizar o espaço, as cabines telefônicas foram fabricadas sob medida para que ficassem encaixadas no vão da escada.

As estações de trabalho foram projetadas pela H2C e fabricadas usando tecnologias de fabricação digital. Uma impressora 3D foi usada para testar os protótipos em pequena escala, ajustando a estabilidade, os encaixes e os sistemas de montagem. Esse método de fabricação garante uma produção mais precisa que respeita os recursos. As mesas, com seus tampos curvos e modulares, são inspiradas nas ondas do mar, oferecendo um design ergonômico que define cada espaço de trabalho de forma fluida e estética.

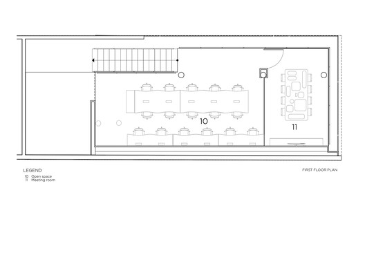
A sala de reuniões é um elemento-chave do design. A mesa, projetada pela H2C também usando máquinas de fabricação digital, apresenta um tampo exclusivo com recortes preenchidos com a matéria-prima das sandálias Linus em diferentes cores. Essa referência sutil à história da marca proporciona uma ligação visual com sua identidade e, ao mesmo tempo, cria uma peça de mobiliário que é funcional e esteticamente agradável.

Leia na íntegra
Ao navegar no site você estará concordando com a nossa política de privacidade.
Ok