13/03/2024 | Notícia | ArchDaily

Descrição enviada pela equipe de projeto. Próximo ao Parque do Ibirapuera, edifício de uso misto Ibira By You aplica conceitos de placemaking para incentivar o encontro entre pessoas

O empreendimento do Estúdio ACIA Arquitetos, em parceria com a YOU INC., é contemporâneo, moderno e tem como destaque uma praça em seu térreo, proporcionando presença urbana no entorno

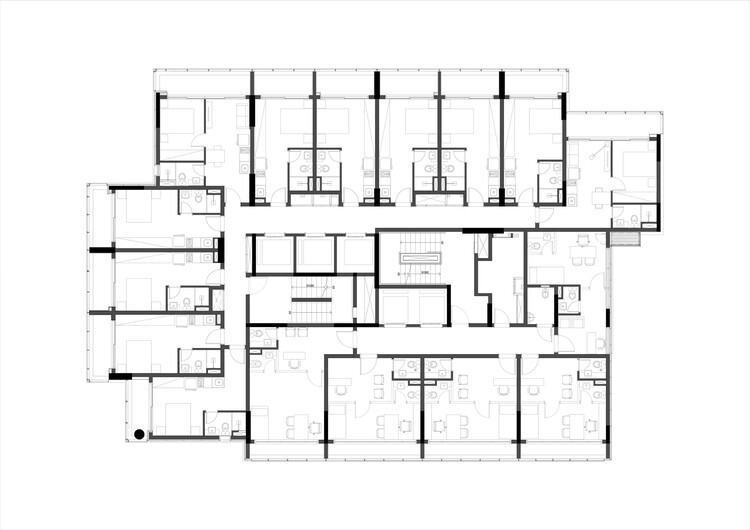
São Paulo, 2024 – Localizado estrategicamente entre a Alameda Arapanés e a Avenida Ministro Gabriel Resende Passos, na zona sul da capital paulista, o Ibira by You se destaca como um empreendimento de uso misto, oferecendo em seu programa unidades residenciais e consultórios médicos com acessos e circulação independentes.

O edifício conta com uma volumetria que se insere de forma harmônica em relação ao bairro, fachada ativa e presença de significativas áreas verdes.

Projetado para promover o encontro, incentivar a interação e cultivar o espírito de comunidade, a edificação conta com a inclusão de uma pequena praça que, integrada aos acessos e calçadas, valoriza a presença humana no entorno do empreendimento.

As unidades se dividem em estúdios residenciais de até 38 m² e consultórios médicos ao longo dos seus 22 pavimentos de uma torre única. Para abrigar esses dois usos em um único edifício, o bloco residencial da torre foi projetado de forma a evolver o bloco médico, localizado em um nível mais baixo. Devido sua localização em uma área de eixo próxima à estação de metrô, optou-se também por um menor número de vagas, que atendem às unidades residenciais e consultórios, com o objetivo de incentivar caminhadas pelas ruas do bairro e o uso do transporte público.


Em relação às materialidades, a edificação incorpora painéis metálicos perfurados em três cores distintas: marrom, cinza e branco. No bloco médico, a aplicação de vidros serigrafados brancos cria um jogo visual com os painéis da mesma cor. Na torre residencial, chapas metálicas perfuradas na cor marrom possibilitam ao mesmo tempo, transparência e sombreamento interno reduzindo desta forma, a necessidade da utilização do ar-condicionado. No térreo, junto à fachada ativa e aos acessos, foram implementados grandes painéis metálicos com variação em suas aberturas. O elemento ajuda a aproximar o edifício da escala do pedestre, trazendo harmonia à relação entre o edifício e o entorno.

A busca pela humanização da arquitetura, considerando o usuário final e sua experiência no lugar, é tônica constante nos projetos da ACIA, como destaca Ricardo Baddini, arquiteto sócio do estúdio. “Utilizamos a arquitetura para ampliar e aproximar os usos de moradia, trabalho e lazer, além de criar lugares que funcionem como respiros, onde os usuários possam descansar ou tomar um café. Nosso objetivo é proporcionar locais que incentivem encontros, elemento que consideramos como essencial nas cidades”.

Nesse sentido, as áreas de lazer foram distribuídas ao longo do bloco residencial do Ibira By You, de modo a incentivar a interação entre moradores. Dentre os espaços de uso comum estão uma quadra de Squash, salão de festas, academia, coworking e, no rooftop, piscina com vista para o Parque Ibirapuera.

O edifício conta ainda com a aplicação de algumas práticas de conforto ambiental, que vão desde a implantação favorável à insolação e ventilação das áreas privativas e de lazer da torre, passam por uma generosa área verde e permeável no térreo e nas áreas de uso comum, e chegam no detalhe das proporções das aberturas das telas metálicas dos terraços, que protegem as unidades da incidência solar direta e proporcionam um maior conforto térmico no interior das mesmas. “Nos preocupamos com a escala e com ambientes bem setorizados, flexíveis, iluminados e com alto conforto ambiental”, completa Baddini. Aliado a essas práticas, a presença de reservatórios de reuso de água e painéis solares contribuem ainda mais, para a condição sustentável do projeto.
Ao navegar no site você estará concordando com a nossa política de privacidade.
Ok