Casa Vila Real Itu / Alexandre Chaguri Arquitetura

06/11/2025 | Notícia | ArchDaily

Descrição enviada pela equipe de projeto. Localizada no condomínio Fazenda Vila Real, em Itu (SP), esta residência de veraneio é a quarta casa desenvolvida para o mesmo cliente. O pedido, desta vez, foi por uma casa ampla, transparente e em diálogo direto com a natureza, premissas que nortearam todo o processo criativo. O ponto de partida do projeto foi o desejo de conexão com a área de mata nativa existente no terreno, elemento transformado em protagonista neste projeto. Desde a entrada principal da casa, a vegetação densa se impõe como cenário e moldura, definindo a implantação e o partido arquitetônico.

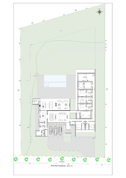
O terreno, marcado por um desnível em relação à rua, foi aproveitado para rebaixar parte da residência, criando uma implantação mais discreta e garantindo acessibilidade no plano interno. O conjunto se organiza a partir de um eixo central, com uma volumetria horizontal que valoriza a escala do entorno e a continuidade visual em direção à paisagem.

A estrutura combina alvenaria tradicional com inserções pontuais de elementos metálicos, conferindo leveza e amplitude aos grandes vãos envidraçados. Essa transparência permite que todos os ambientes sociais e íntimos se abram para a mata preservada, dissolvendo os limites entre interior e exterior.

A organização interna distribui-se em alas bem definidas: na entrada, concentram-se os espaços de serviço, como cozinha e área de apoio, no núcleo central, as áreas sociais, de estar e jantar, se abrem para o exterior, em continuidade visual e espacial. À direita, encontram-se cinco suítes, todas voltadas para a paisagem, além de um home theater e um jardim de inverno que atua como respiro de iluminação e ventilação natural.

Uma garagem para quatro veículos está estrategicamente posicionada, permitindo a imediata contemplação da vista para a mata. O projeto paisagístico, assinado por Roberto Riscala, reforça a imersão na natureza. O desenho dos jardins acompanha a implantação arquitetônica, preservando a vegetação existente e propondo uma relação orgânica entre casa e terreno.

A residência, com execução da Construtora Jatobba, evidencia a união entre arquitetura e paisagem. A transparência dos grandes planos envidraçados e o respeito ao entorno natural definem uma obra concebida como refúgio contemporâneo para férias e encontros familiares.

Leia na íntegra

Ao navegar no site você estará concordando com a nossa política de privacidade.

Ok
Fechar modal