07/01/2026 | Notícia | ArchDaily

Descrição enviada pela equipe de projeto. O projeto desta residência foi desenvolvido em duas etapas distintas e complementares. A construção começou com base no projeto original, mas, devido a circunstâncias específicas geradas pela pandemia de COVID-19, foi adquirida por uma nova família, que realizou as intervenções necessárias para atender às suas demandas.




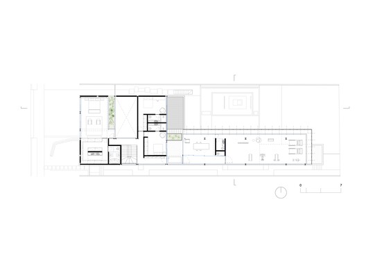
A estratégia evidencia, em ambos os momentos, uma relação mais introspectiva em relação à rua e vizinhança e, em contrapartida, de grande abertura e integração com a área de preservação no fundo do lote. O arranjo inicial, tem organização da área social no piso térreo (com uma suíte para visitas) e a área íntima no piso superior com o pé-direito duplo que confere integração visual para a circulação e jardim no piso superior. Estas decisões e virtudes são mantidas na segunda etapa do projeto.



A distinção entre os espaços servidos e servidores é clara e foi proposta de forma a racionalizar a ocupação, promovendo vazios que potencializam a relação entre os ambientes internos e externos. A estrutura em perfis metálicos de aço permitiu a criação de grandes vãos, livre de compartimentações e com um número reduzido de pontos de apoio.

No andar superior, além dos quartos, há uma academia e um escritório, ambos protegidos da insolação do Norte por uma segunda pele de brises-soleils metálicos pivotantes. Esse espaço ocupou o terraço ajardinado previsto no projeto inicial e foi ampliado com a extensão da laje sobre a área da lavanderia e o canil.




A implantação da piscina, além de aproveitar a área com maior insolação, busca criar diferentes espaços de ocupação, como deck, passarela, área de natação, prainha e lareira, através de níveis variados e pela presença ou ausência da lâmina d'água.

Ao navegar no site você estará concordando com a nossa política de privacidade.
Ok