Casa em Vinhedo / Apiacás Arquitetos

30/10/2025 | Notícia | ArchDaily

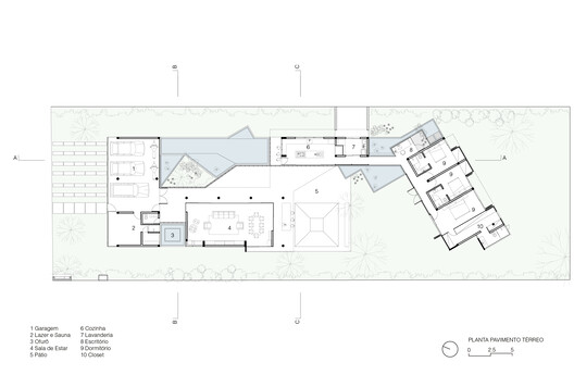
Descrição enviada pela equipe de projeto. O terreno plano e de dimensões generosas, destinado a uma residência com área máxima de 250 m², motivou-nos a implantá-la de modo a explorar ao máximo a interface entre o programa coberto e as áreas externas. A distribuição resultante retoma uma lógica já experimentada em outros projetos residenciais do escritório, em que as circulações entre os cômodos se configuram como passagens cobertas, porém abertas lateralmente — sem caixilhos nem alvenarias —, de forma a prolongar a vivência entre interior e exterior.

Vista do alto, a casa pode ser lida como uma grande laje que percorre o terreno como uma marquise de geometria irregular, moldada pela disposição dos ambientes. Essa cobertura contínua organiza o conjunto, alternando espaços fechados e abertos — piscina, pátio e áreas de estar externas —, de modo a favorecer a transição fluida entre as partes. No centro do pátio, um recorte circular abriga a fogueira, elemento de reunião e permanência.

Os volumes independentes, conectados pelas varandas-circulações geradas pelo desenho dessa marquise, possuem geometria regular e definem pequenos pátios e claustros. O bloco dos quartos, no entanto, foi sutilmente inflexionado em relação aos demais, buscando a orientação solar mais favorável.

A ordenação dos ambientes segue uma lógica hierárquica de usos. Voltado à rua, o primeiro volume abriga o hall de acesso, a garagem e a sauna. Este espaço é envolto por painéis de madeira ripada com diferentes mecanismos de abertura: portões basculantes para a garagem, porta de pedestre e painéis pivotantes voltados à piscina. Quando fechados, os painéis tornam-se coplanares, compondo um único plano contínuo e neutro. Essa solução reforça a intenção de flexibilidade do espaço, cuja amplitude permite múltiplos modos de uso.

Perpendicular a esse primeiro volume situa-se o estar, cuja fachada principal se abre inteiramente para a piscina. No extremo oposto, o volume da cozinha conecta-se ao setor íntimo por meio de uma circulação protegida por caixilhos, garantindo conforto e integração visual.

A construção se apoia essencialmente em três materiais: concreto, vidro e madeira. Espera-se, contudo, que um quarto elemento — a vegetação — venha a se integrar plenamente à arquitetura. No tempo, ela deverá atravessar e suavizar as transições entre os ambientes, reforçando uma intenção recorrente em nossas investigações: provocar o encontro entre o dentro e o fora acentuando a vocação natural do lugar. Essa condição, própria ao clima brasileiro, abre mão da necessidade de que todo espaço tenha que ser hermético e condicionado, propondo uma morada que confere o mesmo peso de importância dos espaços construídos para os não construídos.

Leia na íntegra

Ao navegar no site você estará concordando com a nossa política de privacidade.

Ok
Fechar modal