27/01/2026 | Notícia | ArchDaily

Descrição enviada pela equipe de projeto. A Casa Altiva foi implantada em um lote de condomínio, com fragmentos de Mata Atlântica e proximidade com a cidade do Recife. A construção adotou estrutura metálica e alvenaria em tijolos de solo-cimento e reciclados. O projeto e a execução contaram com a participação ativa dos proprietários, alinhados a práticas sustentáveis e receptivos a soluções inovadoras, como o reaproveitamento de água de chuva, o tratamento de esgoto por biodigestor e a geração de energia por meio de painéis fotovoltaicos.

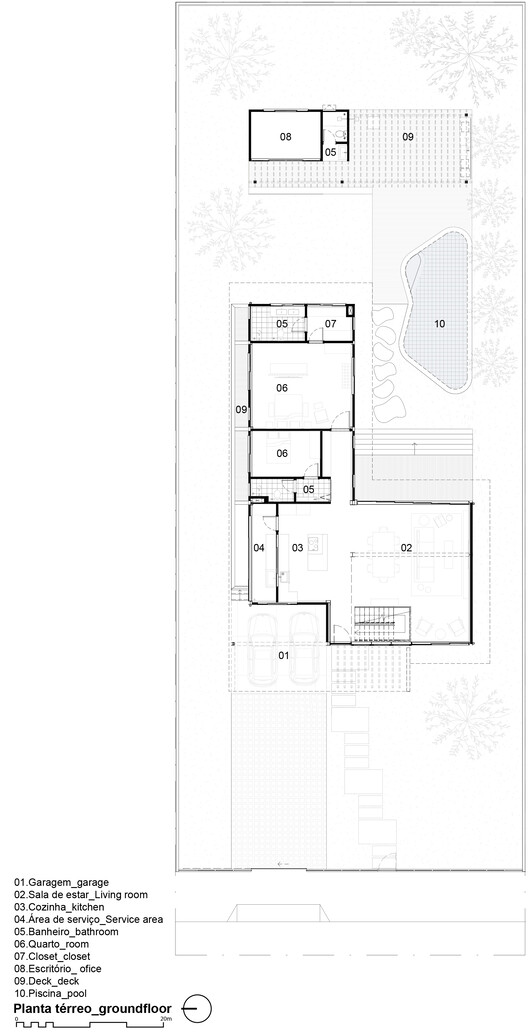
Implantada em um terreno longilíneo, a casa teve sua forma definida de modo que cada ambiente ocupasse a posição mais favorável em relação às ventilações predominantes, à incidência solar e à integração com a mata existente ao fundo do lote. A implantação proposta permitiu a criação de um pátio interno, onde se localizam a piscina e o gazebo de apoio, visíveis a partir de quase todos os ambientes da casa.

A organização espacial se desenvolve de forma fluida e clara, acompanhando o comprimento do terreno. Os setores social, íntimo e de serviço se conectam visual e funcionalmente. Grandes aberturas foram estrategicamente posicionadas para favorecer a ventilação cruzada e garantir iluminação natural abundante ao longo do dia.

A relação com a paisagem foi um dos principais direcionadores do projeto. A área social se integra tanto à parte frontal quanto ao fundo do terreno, onde a presença da mata transmite uma sensação de refúgio e tranquilidade. Essa integração ocorre de forma cuidadosa, com aberturas que enquadram a vegetação e reforçam a conexão entre interior e exterior.

A escolha do sistema construtivo em tijolo ecológico e estrutura metálica partiu dos próprios clientes, que buscavam uma obra de qualidade e baixo impacto ambiental. O tijolo ecológico, além de reduzir resíduos na obra, contribui para o desempenho térmico e acústico da edificação, assumindo também um papel estético indispensável no projeto. Já a estrutura metálica permitiu maior precisão construtiva e flexibilidade no desenho dos espaços. Toda a cobertura da residência foi executada com telhas termoacústicas, garantindo conforto ambiental e facilidade na execução, sem sobrecarga de peso.

Além dos tijolos de solo-cimento utilizados no módulo da residência, foi construído um gazebo de apoio, executado com tijolos reciclados produzidos a partir de resíduos da construção civil. Esse elemento é fruto de uma pesquisa realizada pela engenheira líder da obra, Joedy Santa Rosa, que atingiu resultados de resistência à compressão superiores a 6,0 MPa.

Elevada do solo, a casa se apresenta de forma leve, quase flutuante. Essa decisão evita o contato direto com o solo, protegendo a edificação da umidade do terreno e facilitando o acesso às infraestruturas embutidas. Ao mesmo tempo, a solução minimiza a intervenção no solo e preserva as características naturais do lote.

O resultado é uma residência de identidade singular, construída com materiais de alta qualidade, menor pegada ambiental e estratégias integradas de eficiência no uso de recursos. A Casa Altiva traduz uma forma de morar leve, integrada à paisagem e alinhada a escolhas conscientes, em que arquitetura, técnica e modo de vida caminham juntos.

Leia na íntegra
Ao navegar no site você estará concordando com a nossa política de privacidade.
Ok