07/01/2026 | Notícia | ArchDaily

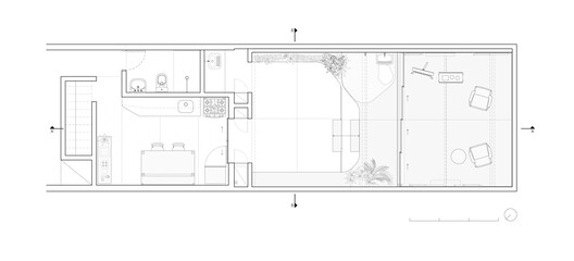
Descrição enviada pela equipe de projeto. O projeto partiu da demanda por um espaço de trabalho para um casal de artistas plásticos em sua residência, situada em um conjunto de casas geminadas de autoria de João Kon no bairro do Campo Belo em São Paulo. A constituição do ateliê se dá com a implantação de uma nova cobertura. Feita de estrutura metálica leve – telhas termoacústicas sobre perfis 'U' enrijecidos – ela ocupa transversalmente o fundo do lote, utilizando dessa forma os muros de divisa como principais suportes de trabalho para os artistas.





Priorizou-se o uso da luz natural, ideal para a perfeita reprodução das cores nas obras. O ateliê se abre para o pátio conformado entre ele e a casa por meio de caixilharia piso-teto de estrutura delicada em perfis de aço. O plano da cobertura se solta levemente dos muros laterais, permitindo a entrada de uma luz zenital difusa e suave sobre as paredes de divisa. Aos fundos, a iluminação e ventilação se dão por meio de um shed transversal com caixilhos basculantes apoiados sobre a viga-calha da estrutura do telhado. O projeto tira partido da necessidade de manutenção do patamar elevado onde está situado o ateliê para qualificação do pátio descoberto através da criação de jardins vibrantes – que fazem a mediação entre esses espaços – e de bancos de concreto para desfrute do quintal. Além do ateliê, a reforma contemplou os ambientes de cozinha, lavanderia e sanitário no pavimento térreo, buscando criar relação mais fluida da residência com o pátio e, consequentemente, o ateliê, transformando esse conjunto nos fundos do terreno também em ótimo lugar de convívio.

As soluções construtivas buscaram agilidade e simplicidade, o que se reflete na estética da obra. No entanto, é possível notar distinção entre o espaço de trabalho e os ambientes da residência pela materialidade. Enquanto o ateliê se apresenta sóbrio, com piso em concreto polido e pintura branca em todos os elementos, pátio, cozinha e sanitário se utilizam de cores e texturas variadas em revestimentos de parede, fórmicas e madeiras, com destaque para o piso em granilite/fulget de cor rosada, contínuo em todos estes espaços.

Ao navegar no site você estará concordando com a nossa política de privacidade.
Ok