Casa Ouro Velho / Mutabile Arquitetura

27/11/2025 | Notícia | ArchDaily

Descrição enviada pela equipe de projeto. Localizada em um declive acentuado em Nova Lima, Minas Gerais, a Casa Ouro Velho se dobra e se abre em múltiplos níveis, estabelecendo um diálogo contínuo e respeitoso com a paisagem natural e a exuberância da Mata Atlântica. Concebida como uma resposta direta à topografia e à mata circundante, o projeto se organiza em níveis que abraçam o terreno, estabelecendo um diálogo contínuo entre a arquitetura e a natureza, com recortes precisos que garantem a preservação das árvores nativas de maior porte no lote.

Os clientes buscavam um refúgio com máxima integração visual com a serra, demandando uma arquitetura que maximizasse a vista panorâmica. Esta premissa foi reforçada pela legislação local, que só permite a supressão vegetal de um terço do terreno de 1.000m², tornando o respeito à flora uma condicionante central. Além disso, o orçamento limitado tornou a definição das aberturas um ponto chave: elas foram criteriosamente definidas e dimensionadas para maximizar o impacto do investimento. Uma solução estética e econômica foi marcar os volumes da casa por cores, dispensando revestimentos onerosos.

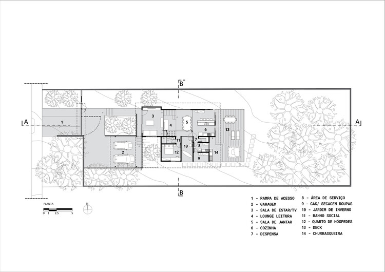
As áreas sociais se voltam para o norte, onde está a vista da serra. O percurso da entrada até o deck nos fundos do lote vence os desníveis de forma gradual, minimizando os custos e impactos ecológicos da movimentação de terra. O acesso de pedestres se dá por um eixo horizontal que, ao atingir a sala de estar, atua como um pivot central na distribuição vertical do programa. A estratégia organiza a área íntima um meio-nível acima e a área social um meio-nível abaixo, potencializando a volumetria interna para criar um pé-direito duplo imponente e ambientes amplos. No pavimento superior, a circulação aberta que leva aos quartos oferece uma vista privilegiada da paisagem.

Em termos de conforto ambiental, a orientação solar é planejada: os quartos ficam voltados para o sul, garantindo frescor, enquanto a suíte principal e a área social se voltam para o leste e norte para otimizar a iluminação e a vista. Na fachada voltada para a rua (oeste), painéis de cobogós de concreto pintados filtram o sol poente, assegurando o conforto térmico da entrada e impedindo a visão direta dos carros na garagem – uma solução estética e funcional. Por fim, o telhado borboleta em estrutura metálica preta, com seus amplos beirais, protege as fachadas e reforça a intenção da casa de máxima abertura ao entorno.

A Casa Ouro Velho é um testemunho da arquitetura que responde ativamente ao seu sítio. Através da implantação cuidadosa e das soluções bioclimáticas inteligentes, o projeto celebra a paisagem de Minas Gerais, provando que é possível conciliar um programa residencial contemporâneo e orçamento restrito com a inserção respeitosa da edificação na Mata Atlântica circundante.

 

Leia na íntegra

Ao navegar no site você estará concordando com a nossa política de privacidade.

Ok
Fechar modal